Hellcat
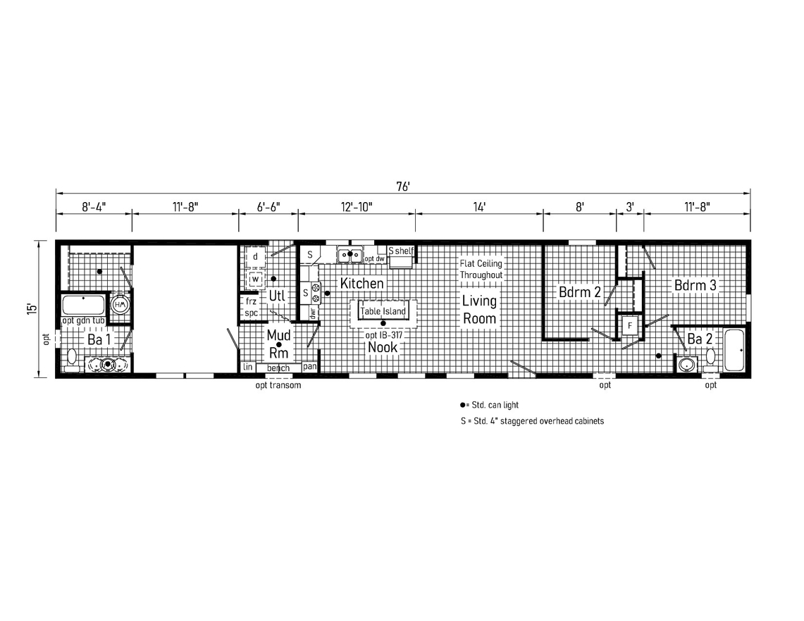
Model #: BZ16763B | Dimensions: 16x76
3 bed(s)
2 bath(s)
1140 sqft
Description:
- Vertical Siding and (2) Gatsby Lights on Hitch End
- Ice & Water Shield
- Extra Widows in Master Bath, 2nd Bath and Hallway
- 40 Gallon Electric Hot Water Tank
- Transon Window in Mudroom
- Stem Lights at Island
- Black Appliance Package
- Mudroom Boot Bench, Linen and Pantry
- Fiberglass Tubs and China Lavs
- Paddle Fan with Light Living Room
- IB-317 Kitchen Island
Style: Single-wide Homes
Manufacturer: Cavco Clarion
Location: Youngsville, PA
On Display?: Yes

















