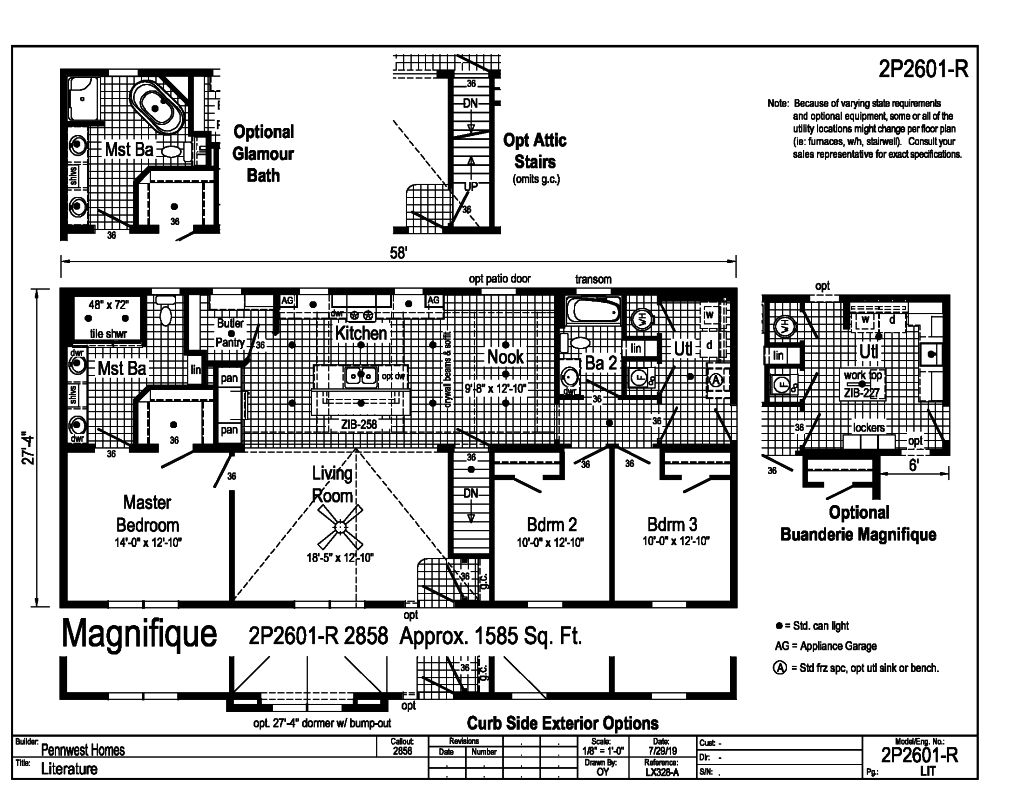
Magnifique
Model #: 2P2601R | Dimensions: 28x58
3 bed(s)
2 bath(s)
1585 sqft
Description:
The magnificent Magnifique is one of the best selling modular ranches of all time...Year after year new homeowners fall in love with the perfect plan and features to suit their families needs.
- 8'6" Ceiling
- 27-4" Dormer with Eyebrow with Evolve Stone
- Painted Black Front Door with Sidelite
- Black Board & Batten Shutters
- Full Lite Glass Door & (2) Clearview Windows off Nook
- Huge Barnwood Oak Eat-In Island with Galley Sink and Pendant Lighting
- Drywall Soffit Beams Kitchen and Nook
- Rustic Elm Soft Close Cabinets with Black Pulls
- Walk-In Butler Pantry
- Stainless Steel Appliance Package
- 2 Clearview Windows with Full Lite Door at Nook
- Ceramic Tile Backsplash
- Boot Bench at Utility Room
- 48"x72" Walk-In Tile Shower
- Double Bowl Vanity with Shelves and Drawers
- Barn Door at Master Bedroom Walk-In Closet
- Utility Room Base Cabinet, Sink & Overhead Laundry Cabinet
Style: Modular Homes
Manufacturer: Cavco Emlenton
Location: Allegany, NY
On Display?: Yes





















